Versteigerung - Dachterrassenwohnung W10
4 E 25/25k
Zwangsversteigerung von Wohnungseigentum
05.03.2026
am 08.04.2026 um 11:00 Uhr
Bezirksgericht Hietzing, Dommayergasse 12, 1130 Wien, 4.Stock, Saal VI
01/877 26 21 - 308523
06.04.2026, 14:00 bis 17:00 Uhr
1130 Wien, Hummelgasse 50/Beckgasse 52
Ohne Beisein einer Amtsperson!
01215 Unter St. Veit
514
17
Hummelgasse 50 ident Beckgasse 52
1130 Wien
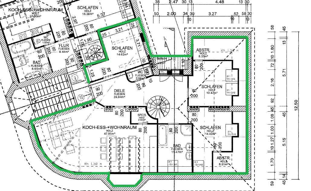
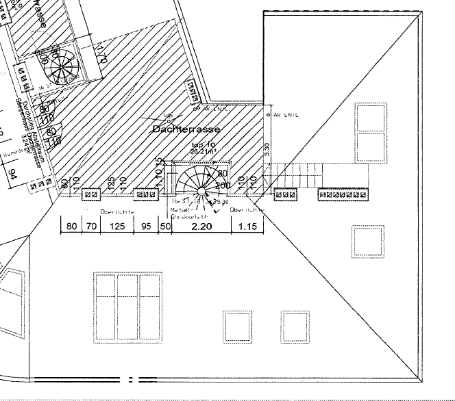
Eigentumswohnung, Dachterrassenwohnung, Dachgeschoßwohnung
Die zu bewertende Eigentumswohnung befindet sich in einem Mehrfamilienwohnhaus in der Bundeshauptstadt Wien, im Bezirk Hietzing. Das Wohnhaus befindet sich auf dem Eckgrundstück Hummelgasse/Beckgasse. Das Mehrfamilienwohnhaus besteht aus Kellergeschoss (bezeichnet als Souterrain), Erdgeschoss (bezeichnet als Hochparterre), 1.Obergeschoss, 2. Obergeschoss und Dachgeschoss. Ein Personenlift ist nicht vorhanden.
Die bewertungsgegenständlichen 129/1070 Anteile B-LNR 17 sind verbunden mit dem Wohnungseigentum an der W 10.
Die bewertungsgegenständliche Wohnung befindet sich im Dachgeschoss des Wohnhauses Hummelgasse 50/Beckgasse 52 und besteht aus den folgenden Räumen:
• Diele
• WC
• Koch-Ess-Wohnraum
• Speis
• Zimmer
• Zimmer
• Zimmer
• Bad
862 m²
146,94 m²
620.000,00 EUR
Zum Bewertungsstichtag war die Wohnung mit einer Einbauküche sowie mit Sanitäreinrichtungsgegenständen im Badezimmer und im WC ausgestattet. Siehe diesbezügliche Dokumentation durch Fotos im Anhang des Gutachtens.
Gemäß Angaben im Mietvertrag stehen diese im Besitz des Mieters, sind allenfalls durch den Vermieter finanziell abzulösen, und sind daher in die Bewertung des Wohnungseigentumsobjekts nicht inkludiert worden.
nicht festgestellt
62.000,00 EUR
310.000,00 EUR
Dieses Gutachten basiert auf den erhaltenen Unterlagen, erteilten Informationen und den getroffenen Annahmen. Der vorstehende Verkehrswert wurde unter der Voraussetzung ermittelt, dass mir alle für die Bewertung maßgeblichen Umstände wahrheitsgemäß offengelegt wurden. Sollten nachträglich Umstände bekannt werden, von denen ich im Rahmen der gegenständlichen Gutachtertätigkeit keine Kenntnis erlangt habe, behalte ich mir vor, das gegenständliche Gutachten zu widerrufen bzw. abzuändern.
Weiters wird jedem Interessenten geraten, vor einem eventuellen Erwerb von der allenfalls gegebenen Möglichkeit Gebrauch zu machen, das Objekt selbst zu besichtigen, um sich ein eigenes Bild von der Immobilie zu machen.
Das Bewertungsgutachten umfasst 70 Seiten zuzüglich 76 Seiten Anhang inklusive Fotodokumentation.

