Versteigerung - Villa Dorothea
5 E 38/24k
Zwangsversteigerung einer Liegenschaft
19.03.2026
am 07.05.2026 um 13:00 Uhr
Bezirksgericht Baden, 2500 Baden, Conrad v. Hötzendorf Pl. 6, Verhandlungssaal 5, 1.Stock
Der verpflichteten Partei wird aufgetragen, die zu versteigernde Liegenschaft
Grundbuch 04035 Vöslau
EZ 509
Anteile 1/1
B-LNr. 2
am 14.4.2026, 9:00 – 10:00 Uhr von Kauflustigen besichtigen zu lassen.
Ohne Anrechnung auf das Meistbot sind zu übernehmen:
-
Unter dem geringsten Gebot findet ein Verkauf nicht statt.
Gemäß § 147 EO kann das Vadium ausschließlich in Form von Sparbüchern erlegt werden.
Die verpflichtete Partei hat nicht bis spätestens 14 Tage nach Bekanntgabe des Schätzwertes
dem Exekutionsgericht mitgeteilt, dass sie auf die Steuerbefreiung des § 6 Abs. 1 Z 9 lit. a
UStG 1994 verzichtet.
An die dinglich Berechtigten, insbesondere an die Pfandgläubiger einschließlich der
Gläubiger, zu deren Gunsten eine Höchstbetragshypothek eingetragen ist, sowie bezüglich
der Steuern und Abgaben an die öffentlichen Organe ergehen die in der folgenden Nachricht
enthaltenen Aufforderungen.
Die verpflichtete Partei hat die Besichtigung der Liegenschaft samt Zubehör durch
Kaufinteressenten zu gestatten. Auch Dritte haben die Besichtigung zu dulden.
Zur Nachricht:
Die Versteigerungsbedingungen, die auf die Liegenschaften sich beziehenden Urkunden,
Schätzungsprotokolle usw. können von den Kauflustigen in der umstehend bezeichneten
Gerichtsabteilung während der für den Parteienverkehr bestimmten Zeit eingesehen werden.
Bei dem umstehend bezeichneten Exekutionsgericht sind Ablichtungen des gesamten
Schätzungsgutachtens gegen Kostenersatz erhältlich. Das Schätzungsgutachten und eine
Kurzfassung ist aus der Ediktsdatei zu ersehen (www.edikte.justiz.gv.at).
Allgemeine Aufforderung:
Rechte, die diese Versteigerung unzulässig machen würden, sind spätestens im
Versteigerungstermin vor Beginn der Versteigerung bei Gericht anzumelden, widrigens sie
zum Nachteil eines gutgläubigen Erstehers in Ansehung der Liegenschaft selbst nicht mehr
geltend gemacht werden könnten.
Allgemeine Aufforderung an die Pfandgläubiger:
Diejenigen Gläubiger, für die auf dieser Liegenschaft pfandrechtlich sichergestellte
Forderungen haften, mit Ausnahme der Gläubiger mit bedingten Forderungen, werden
aufgefordert, vor dem Versteigerungstermin die Erklärung abzugeben, ob sie mit der
Übernahme der Schuld durch den Ersteher unter gleichzeitiger Befreiung des bisherigen
Schuldners einverstanden sind.
Wird keine Erklärung abgegeben, so wird die Forderung durch Barzahlung berichtigt. Der
Gläubiger kann sich aber noch in die Verteilungstagsatzung mit der Übernahme der Schuld in
Anrechnung auf das Meistbot durch den Ersteher und der Befreiung des früheren Schulderns
einverstanden erklären.
Aufforderung an die öffentlichen Organe bezüglich der Steuern und sonstigen
öffentlichen Abgaben:
Die öffentlichen Organe, die zur Vorschreibung und Eintreibung der von der Liegenschaft zu
entrichtenden Steuern, Zuschläge, Gebühren und sonstigen öffentlichen Abgaben berufen
sind, werden aufgefordert, in Ansehung aller dieser öffentlichen Abgaben, die auf der oben
bezeichneten Liegenschaft pfandrechtlich sichergestellt sind, die Erklärung abzugeben, ob der
Übernahme der Schuld durch den Ersteher unter gleichzeitiger Befreiung des bisherigen
Schuldners zugestimmt wird.
Wird keine Erklärung abgegeben, wird die Forderung durch Barzahlung berichtigt. Der
Gläubiger kann sich aber noch in der Tagsatzung mit der Übernahme der Schuld in
Anrechnung auf das Meistbot durch den Ersteher und der Befreiung des bisherigen
Schuldners einverstanden erklären.
Die bis zum Versteigerungstermin rückständigen, von der Liegenschaft zu entrichtenden
Steuern, Zuschläge, Gebühren und sonstigen öffentlichen Abgaben samt Zinsen und anderen
Nebengebühren, die noch nicht pfandrechtlich sichergestellt sind, müssen spätestens im
Versteigerungstermin vor Beginn der Versteigerung angemeldet werden, widrigens diese
Ansprüche erst nach voller Befriedigung des betreibenden Gläubigers aus der
Verteilungsmasse berichtigt werden würden.
Ungültige Vereinbarungen:
Vereinbarungen, wonach jemand verspricht, bei einer Versteigerung als Mitbieter nicht zu
erscheinen oder nur bis zu einem bestimmten Preis oder sonst nur nach einem gegebenen
Maßstab oder gar nicht mitzubieten, sind ungültig. Die für die Erfüllung dieses Versprechens
zugesicherten Beträge, Geschenke oder anderen Vorteile können nicht eingeklagt werden.
Was dafür wirklich gezahlt oder übergeben worden ist, kann zurückgefordert werden.
Findet die Versteigerung statt?
Es kommt immer wieder vor, dass sich die Parteien sprichwörtlich im letzten Moment einigen
und die Versteigerung entfällt. Sobald das Gericht von einer solchen Einigung erfährt, wird der
Entfall der Versteigerungstagsatzung durch Edikt bekanntgemacht. Es wird daher empfohlen,
möglichst kurz vor dem Termin in der Ediktsdatei Einsicht zu nehmen und sich zu
vergewissern, dass der Termin noch aufrecht ist.
04035 Vöslau
509
546/1
2
Badner Straße 14
2540 Bad Vöslau
Zweifamilienhaus
Die Villa Dorothea wurde in den 1880er-Jahren errichtet. Die Generalsanierung, die Erneuerung der Geschossdecken und der Umbau im Gebäudeinneren erfolgt aufgrund der Baubewilligung aus dem Jahr 2021 (Baubeginnsanzeige im Jahr 2021).
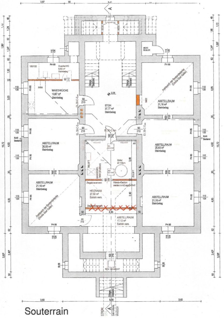
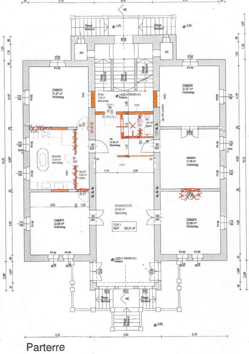
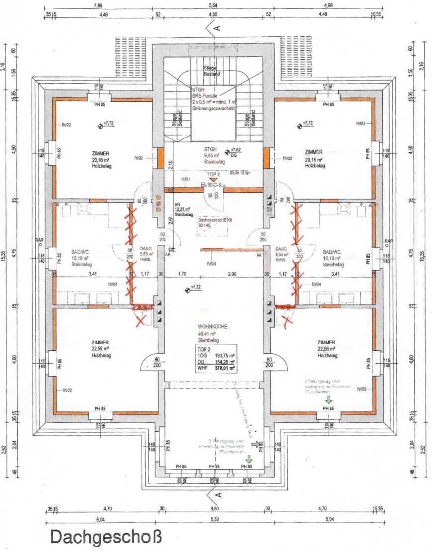
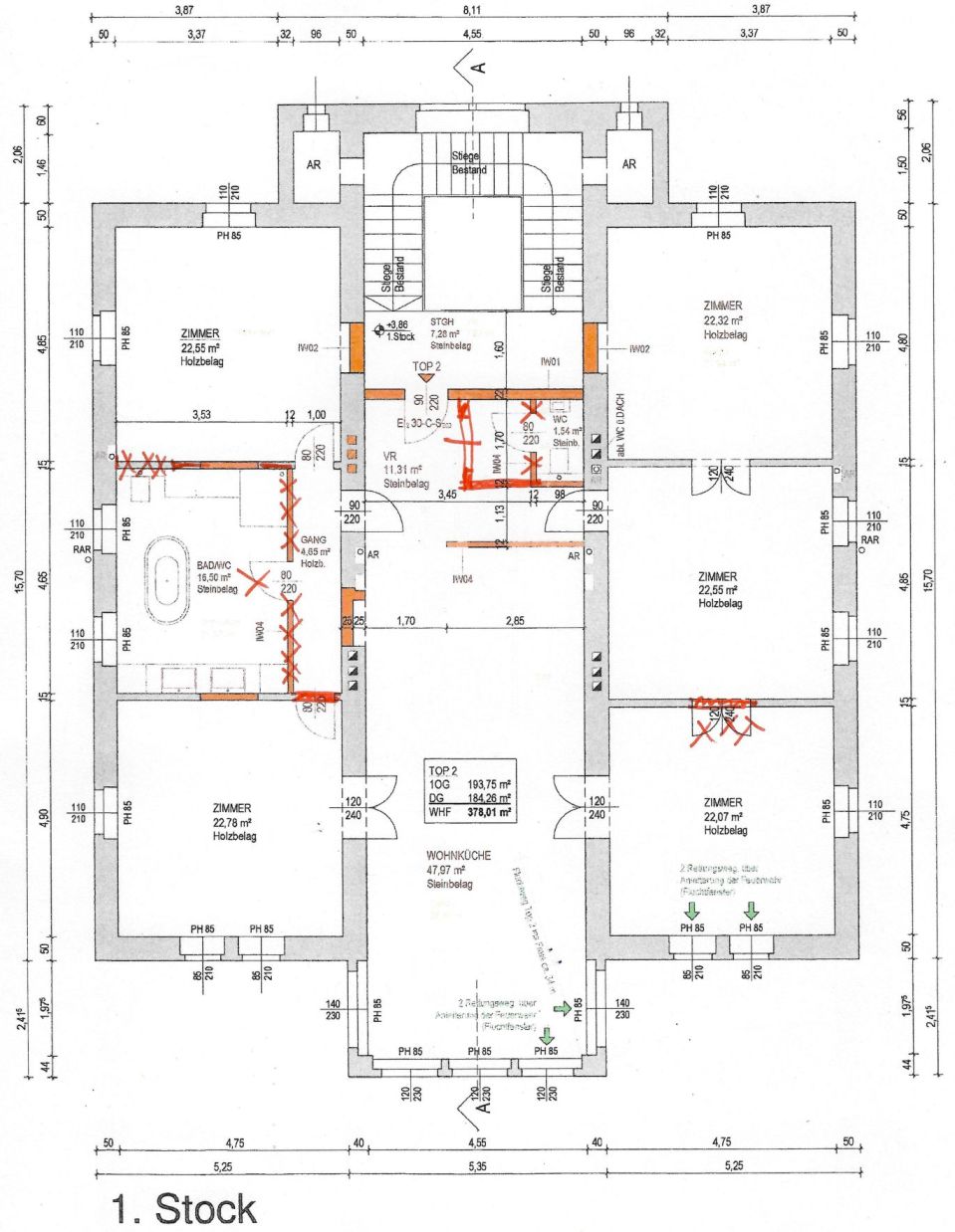
Das Gebäude besteht aus einem Kellergeschoss/Souterrain, einem Erdgeschoss, einem Obergeschoss und einem Dachgeschoss. Die Raumhöhen im Rohbau ohne Fußbodenaufbauten betragen im Erdgeschoss rund 3,70m, im Obergeschoss rund 3,60m und im Kellergeschoss rund 2,95m.
Gemäß den vorliegenden Plänen für die Generalsanierung und den Umbau sind vom Eigentümer zwei Wohneinheiten geplant (Top 1 im Erdgeschoss, Top 2 im Obergeschoss und Dachgeschoss).
Das Gebäude ist in Massivbauweise errichtet, die Geschossdecken im Gebäudeinneren wurden erneuert (Ziegeldecken neu). Das Dach ist als Mansarddach mit Ziegeleindeckung ausgebildet. Die Fassade ist verputzt und gegliedert. Das Gebäude wird derzeit durch alte Holzkastenfenster belichtet.
Der Garten ist begrünt und mit einzelnen Bäumen und Sträuchern bewachsen und weist einen gärtnerisch ungepflegten ("verwilderten") Zustand auf, in einigen Bereichen ist Bauschutt abgelagert. Im Garten befindet sich ein Swimmingpool (ovales Folienbecken), neben dem Pool ist eine alte Gartenhütte vorhanden.
An der südseitigen Grundstücksgrenze ist im hinteren Grundstücksbereich ein Garagengebäude für zwei PKW in Massivbauweise errichtet.
Die straßenseitige Einzäunung erfolgt durch einen Metallzaun aus Betonsockel.
Das Gebäude befindet sich im Rohbauzustand (der gesamte Innenausbau fehlt) mit Betonböden (Rohdecke), Ziegelwänden und Ziegeldecken. Die Elektroleitungen sind teilweise als Rohinstallation vorhanden. Im Dachgeschoss ist die Dachuntersicht offen. Die Dach- und Fassadensanierung und die Erneuerung der Fenster sind ebenfalls noch ausständig. Eine Heizungsanlage ist keine vorhanden.
Bauwerksstatische und vermessungstechnische Überprüfungen sowie bautechnische und haustechnische Bauwerksüberprüfungen haben durch den Sachverständigen im Zuge der Befundaufnahme auftragsgemäß nicht stattgefunden (kein bautechnisches Gutachten), die Beschreibung der vorhandenen Bauausführungen erfolgte ausschließlich durch augenscheinliche Befundung des Gebäudebestandes (ohne Bauwerksöffnungen).
1.537 m²
560,00 m²
1.400.000,00 EUR
kein Zubehör
140.000,00 EUR
950.000,00 EUR











