Versteigerung - Wohnung Top W17
25 E 221/24g
Zwangsversteigerung einer Liegenschaft
12.03.2026
am 06.05.2026 um 08:30 Uhr
Bezirksgericht 6850 Dornbirn, Kapuzinergasse 12, Verhandlungssaal 28/II. Stock
+43 5 76014 3486 08, -31
Die Besichtigung der Liegenschaften findet am 22.04.2026, 09.00 Uhr, statt.
Aus der Ediktsdatei (www.edikte.justiz.gv.at) ist das gesamte Schätzgutachten zur ersehen.
Die obbezeichneten Liegenschaften, nämlich Partie A (Wohnung Top-Nr. W 17) und Partie В (Kfz-Stellplatz in der Tiefgarage TG02) und Partie С (Kfz-Stellplatz in der Tiefgarage TG03)
werden ausschließlich gemeinsam und zwar zum geringsten Gebot von EUR 253.950,00 ausgeboten (§ 146 Abs 1 Z 3 EO).
92001 Dornbirn
15854
GStNr. 9869/3 Sonstige Dornbirn
(Straßenverkehrsanlage), GStNr. 9869/4 Baufläche (Gebäude), Gärten, Stiglingen 45, GStNr. 9869/5 Baufläche (Gebäude), Gärten, Stiglingen 43
140, 158/5704 Anteile
Stiglingen 43 + 45
6850 Dornbirn
Wohnungseigentumsobjekt
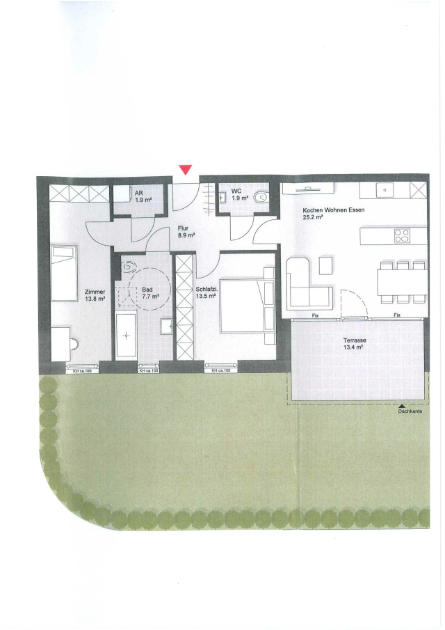
Im Erdgeschoss des Hauses A (Stiglingen 43) der in Dornbirn-Haselstauden gelegenen aus zwei
Baukörpern bestehenden Wohnanlage Stiglingen 43 + 45
befindliche 3-Zimmer-Wohnung Top 17 mit insgesamt ca. 73,22 m² Nutzfläche, einer Terrasse mit ca
8,02 m², einem Keller mit ca 7,47 m² und einer Gartenfläche mit ca. 77,42 m².
3.719 m²
77,42 m²
507.900,00 EUR
Gang:
einfache Garderobe
Bad/WC:
Unterschrank mit Schubladen
Wohnen/Essen/Kochen:
Einbauküche in L-Form, Ober- und Unterschränke,
Elektrogeräte (Induktionskochfeld mit Touch-Control, Backofen mit Einbau-Mikrowelle, Kühl-/Gefrier-Kombination)
Spülbecken
9.000,00 EUR
50.790,00 EUR
253.950,00 EUR
Es wird darauf hingewiesen, dass das Zubehör, insbesondere Kellerabteile, Terrassen, außenliegende Abstellräume und Gartenflächen, im Grundbuch nicht eingetragen sind. Ist
eine Fläche oder ein Raum weder als Zubehör zu einem bestimmten
Wohnungseigentumsobjekt noch als eigenes Wohnungseigentumsobjekt im Grundbuch
eingetragen, handelt es sich um allgemeine Teile der Liegenschaft (vgl OGH vom 02.08.2012 in 4 Ob 108/12 d). Allfällige damit verbundene Streitigkeiten bleiben der Klärung auf dem Rechtsweg vorbehalten.
_________________________________________________________________________________________________________________________
Das Vadium ist gemäß § 179 Abs. 1 EO ausschließlich in Form einer (inländischen) Sparurkunde (Sparbuch) zu erlegen (KEIN BARGELD!) und beträgt EUR 50.790,00.
_________________________________________________________________________________________________________________________
Natürliche Personen haben vor dem Bieten einen amtlichen Lichtbildausweis (Reisepass oder Personalausweis) vorzulegen. Vertreter juristischer Personen haben entsprechende Unterlagen, aus denen sich ihre Vertretungsbefugnis ergibt (zB Firmenbuchauszug, Auszug aus dem Vereinsregister) und die nicht älter als 7 Tage sein dürfen, vorzulegen. Personen, die für eine andere Person bieten, haben eine qualifizierte Vollmacht (eine öffentliche bzw. öffentlich beglaubigte Vollmacht) mitzubringen.
_________________________________________________________________________________________________________________________
Ohne Anrechnung auf das Meistbot sind mit Ausnahme allenfalls bestehender wirksam begründeter Bestandrechte keine Lasten zu übernehmen.
Unter dem geringsten Gebot findet ein Verkauf nicht statt.
_________________________________________________________________________________________________________________________
Rechte, die diese Versteigerung unzulässig machen würden, sind spätestens im Versteigerungstermin vor Beginn der Versteigerung bei Gericht anzumelden, widrigens sie zum Nachteil eines gutgläubigen Erstehers in Ansehung der Liegenschaft selbst nicht mehr geltend gemacht werden könnten.
_________________________________________________________________________________________________________________________
Die verpflichtete Partei hat bis spätestens 14 Tage nach Bekanntgabe
des Schätzwertes nicht mitgeteilt, dass sie auf die Steuerbefreiung gemäß § 6 Abs. 1 Ziff. 9 a UStG 1994 verzichtet.
_________________________________________________________________________________________________________________________
Die bis zum Versteigerungstermin rückständigen, von der Liegenschaft zu entrichtenden Steuern, Zuschläge, Gebühren und sonstigen öffentlichen Abgaben samt Zinsen und anderen Nebengebühren, die noch nicht pfandrechtlich sichergestellt sind, müssen spätestens im Versteigerungstermin vor Beginn der Versteigerung angemeldet werden, widrigens diese Ansprüche erst nach voller Befriedigung des betreibenden Gläubigers aus der Verteilungsmasse berichtigt werden würden.
_________________________________________________________________________________________________________________________
Alle Edikte zum Fall:
6850 Dornbirn, Stiglingen 43 + 45
6850 Dornbirn, Stiglingen 43 + 45
6850 Dornbirn, Stiglingen 43 + 45



















